แบบบ้าน 2 ชั้น พื้นที่ 475 ตร.ม.
แบบบ้าน 2ชั้น / พื้นที่ใช้สอย 475 ตร.ม./ 3ห้องนอน / 4ห้องน้ำ
ค่าก่อสร้าง เริ่ม 7.5-8.5 ล้านบาท

รายละเอียด แบบบ้าน H- 02
แบบบ้าน 2 ชั้น สไตล์ โมเดิร์น / สำหรับที่ดินขนาด กว้าง 25 x 23 เมตร ขึ้นไป
พื้นที่ ชั้น 1 = 275 ตารางเมตร / พื้นที่ ชั้น 2 = 200 ตารางเมตร
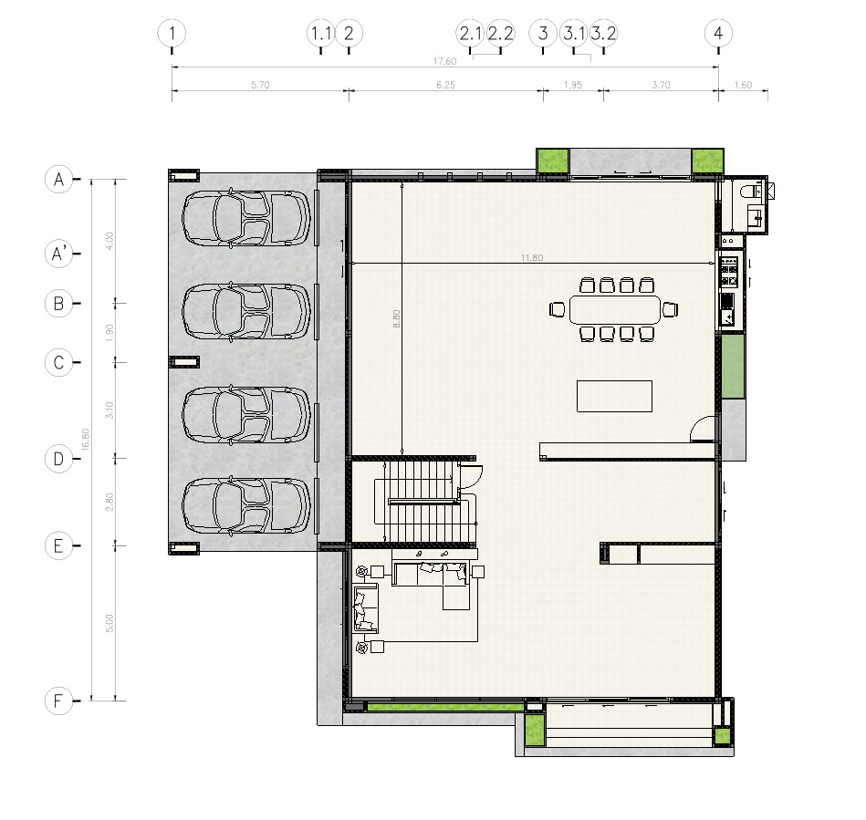
| รายละเอียด | จอดรถ | รับแขก | เตรียมอาหาร | ห้องนอน1 | ห้องนอน2 | ห้องนอน3 | ห้องพระ |
| จำนวน | 4 | 1 | 1 | 1 | 1 | 1 | 1 |
| พื้นที่ / ตร.ม. | 72 | 80 | 108 | 32 | 22.5 | 26 | 21 |

แปลนพื้น ชั้น 1
| รายละเอียด | จอดรถ | รับแขก | เตรียมอาหาร | ห้องนอน1 | เก็บของ | ตี่จู้เอี๊ยะ | - |
| จำนวน | 4 | 1 | 1 | 1 | 1 | 1 | - |
| พื้นที่ / ตร.ม. | 72 | 80 | 108 | 2.6 | 9 | - | - |

แปลนพื้น ชั้น 2
| รายละเอียด | Zone นั่งเล่น | ห้องนอน1 | ห้องน้ำ1 | ห้องนอน2 | ห้องน้ำ2 | ห้องนอน3 | ห้องน้ำ3 | ห้องพระ |
| จำนวน | 1 | 1 | 1 | 1 | 1 | 1 | 1 | 1 |
| พื้นที่ / ตร.ม. | 43 | 32 | 17.2 | 22.5 | 3.4 | 24 | 3.4 | 21 |
ข้อมูลเพิ่มเติม :
- พื้นถึงฝ้าเพดาน ชั้น 1 3.00 เมตร
- พื้นถึงฝ้าเพดาน ชั้น 2 2.80 เมตร
- หลังคา Flatslab
- พื้นที่ใช้สอยรวม 475 ตารางเมตร
- Kitchen Island
แบบบ้าน 1ชุด ประกอบด้วย
| รายละเอียด | จำนวน | หมายเหตุ |
|
1 | ส่งทางอีเมลล์ , Line |
|
5 | ส่งไปรษณีย์ลงทะเบียน |
|
1 | ส่งไปรษณีย์ลงทะเบียน |
|
1 | ส่งไปรษณีย์ลงทะเบียน |
|
- | เฉพาะลูกค้าจ้างเรายื่นขออนุญาต |
|
- | เฉพาะลูกค้าจ้างเรายื่นขออนุญาต |
|
1 | - |
|
||
|
||
ขั้นตอนการซื้อแบบ และการเบิกจ่าย (กรณีไม่มีปรับแก้แบบ)
| การเบิกจ่าย | ยอด | รายละเอียด | ระยะเวลา/วัน |
|
ชำระ 40 % | หลังจากชำระแล้ว ลูกค้าส่งโฉนดที่ดินกลับมาให้เรา เพื่อดำเนินการจัดทำผังสำหรับยื่น ขออนุญาตก่อสร้าง | 1-3 |
|
ชำระ 40 % | เมื่อส่งแบบยื่นขออนุญาตก่อสร้างให้ลูกค้า / ส่งเป็น PDF ไฟล์ Line หรือ E-mail | 1-2 |
|
ชำระ 20 % | เมื่อส่ง BOQ คำนวนค่าก่อสร้างให้ลูกค้า / ส่งเป็น PDF ไฟล์ Line หรือ E-mail | 1-2 |
| เมื่อได้รับชำระค่าบริการงวดที่ 3 ครบถ้วนแล้ว ทางเราจะจัดส่งเอกสารให้ท่านตามที่อยู่ที่แจ้งไว้ | 1-3 | ||
ลูกค้าสร้างบ้านกับทางเรา ค่าก่อสร้าง เริ่ม 7.5 - 8.5 ล้านบาท (ฟรี!! ค่าแบบ)
ลูกค้าสามารถซื้อของบางหมวดเองได้ เพื่อลดต้นทุน ค่าก่อสร้าง อาทิ กระเบื้องพื้น-ผนัง สุขภัณฑ์ ประตู ปั๊มน้ำ โคมไฟ
- ค่าก่อสร้าง 7.5 -8 ล้าน Spec วัสดุ ดังนี้
- กระเบื้องแกรนิตโต้ 60x60 / อิฐมวลเบา /ประตู MDF/ ฉนวนกันร้อน SCG 3"/บันไดไม้จริง / ราวจับเหล็กทำสี Topไม้ / สุขภัณฑ์ cotto, American standard
- แถมฟรี!! ครัวหล่อTopหินแกรนิต ,ปั๊มน้ำ,ถังเก็บน้ำ,ระบบกันปลวก
- ค่าก่อสร้าง 8 -8.5 ล้าน Spec วัสดุ ดังนี้
- กระเบื้องแกรนิตโต้ 60x60 ,SPC / อิฐมวลเบา-อิฐมอญ /ประตูไม้สัก อุปกรณ์ hafele / บันไดไม้สัก / ราวจับสแตนเลส Topไม้
- ฝ้าหลุมซ่อนไฟ LED / ฉนวนกันร้อน SCG 3"/ อ่างล้างหน้าแบบหล่อ Top หินแกรนิต / สุขภัณฑ์ cotto, American standard
- แถมฟรี!! ครัวหล่อTopหินแกรนิต, หล่อเบิ้ล ชั้นวางของห้องอาบน้ำ ,ปั๊มน้ำ, เครื่องทำน้ำอุ่น ,ถังเก็บน้ำ ,ระบบกันปลวก
