แบบบ้าน 3 ชั้น พื้นที่ 359 ตร.ม.
แบบบ้าน 3ชั้น / พื้นที่ใช้สอย 359 ตร.ม. / 4ห้องนอน / 5ห้องน้ำ
ค่าก่อสร้าง เริ่ม 5.7 - 6.7 ล้านบาท

รายละเอียด แบบบ้าน H - 09
แบบบ้าน 3 ชั้น สไตล์ โมเดิร์น / สำหรับที่ดินขนาด กว้าง 15 x 15 เมตร ขึ้นไป
พื้นที่ ชั้น 1 = 155 ตารางเมตร / พื้นที่ ชั้น 2 = 105 ตารางเมตร / พื้นที่ ชั้น 3 = 99 ตารางเมตร
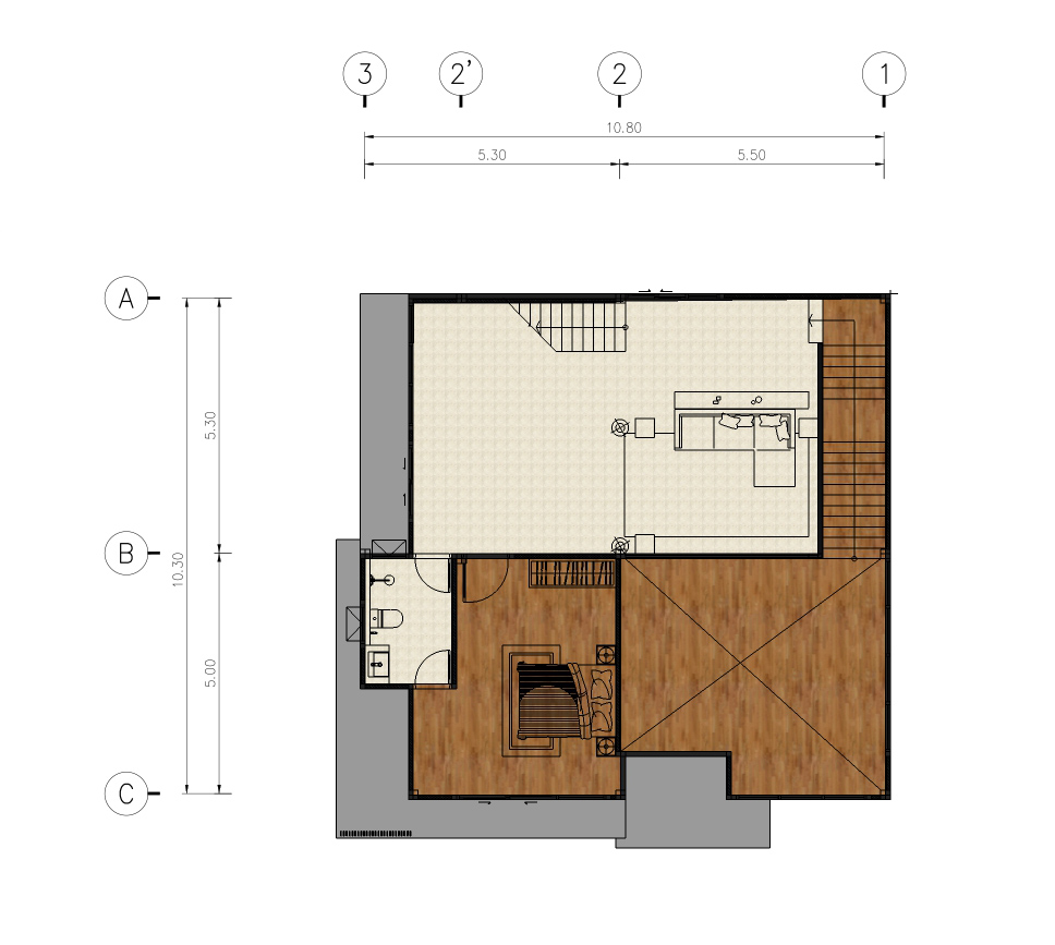
| รายละเอียด | จอดรถ | รับแขก | ห้องครัว | ห้องนอน | ห้องน้ำ | เก็บของ | ห้องพระ |
| จำนวน | 2 | 1 | 1 | 3 | 4 | 1 | - |
| พื้นที่ / ตร.ม. | 26.5 | 35 | 30 | 76 | 27.2 | 6.6 | - |

แปลนพื้น ชั้น 1
| รายละเอียด | จอดรถ | รับแขก | เตรียมอาหาร | ห้องนอนแม่บ้าน | ห้องน้ำ 1 | ห้องน้ำ 2 | เก็บของ |
| จำนวน | 2 | 1 | 1 | 1 | 1 | 1 | 1.2 |
| พื้นที่ / ตร.ม. | 26.5 | 23 | 21 | 5.5 | 3.8 | 2 | 7.2 |

แปลนพื้น ชั้น 2
| รายละเอียด | ห้องนอน 1 | ห้องน้ำ 1 | นั่งเล่น | Double volume | ห้องอื่นๆ | ห้องอื่นๆ | ห้องอื่นๆ |
| จำนวน | 1 | 1 | 1 | 1 | - | - | - |
| พื้นที่ / ตร.ม. | 18.3 | 4.7 | 44 | 25 | - | - | - |

แปลนพื้น ชั้น 3
| รายละเอียด | ห้องนอน 1 | ห้องน้ำ 1 | WIC | นั่งเล่น | ห้องนอน 2 | ห้องน้ำ 2 | ห้องอื่นๆ |
| จำนวน | 1 | 1 | 1 | 1 | 1 | 1 | - |
| พื้นที่ / ตร.ม. | 32 | 10.5 | 8.2 | 9.5 | 18 | 4.4 | - |
ข้อมูลเพิ่มเติม :
- พื้นถึงฝ้าเพดาน ชั้น 1 2.80 เมตร
- พื้นถึงฝ้าเพดาน ชั้น 2 2.80 เมตร
- พื้นถึงฝ้าเพดาน ชั้น 3 2.80 เมตร
- หลังคา ลอนคู่
- พื้นที่ใช้สอยรวม 359 ตารางเมตร
- Kitchen Island
| รายละเอียด | จำนวน | หมายเหตุ |
|
1 | ส่งทางอีเมลล์ , Line |
|
5 | ส่งไปรษณีย์ลงทะเบียน |
|
1 | ส่งไปรษณีย์ลงทะเบียน |
|
1 | ส่งไปรษณีย์ลงทะเบียน |
|
- | เฉพาะลูกค้าจ้างเรายื่นขออนุญาต |
|
- | เฉพาะลูกค้าจ้างเรายื่นขออนุญาต |
|
1 | - |
|
||
|
||
ขั้นตอนการซื้อแบบ และการเบิกจ่าย (กรณีไม่มีปรับแก้แบบ)
| การเบิกจ่าย | ยอด | รายละเอียด | ระยะเวลา/วัน |
|
ชำระ 40 % | หลังจากชำระแล้ว ลูกค้าส่งโฉนดที่ดินกลับมาให้เรา เพื่อดำเนินการจัดทำผังสำหรับยื่น ขออนุญาตก่อสร้าง | 1-3 |
|
ชำระ 40 % | เมื่อส่งแบบยื่นขออนุญาตก่อสร้างให้ลูกค้า / ส่งเป็น PDF ไฟล์ Line หรือ E-mail | 1-2 |
|
ชำระ 20 % | เมื่อส่ง BOQ คำนวนค่าก่อสร้างให้ลูกค้า / ส่งเป็น PDF ไฟล์ Line หรือ E-mail | 1-2 |
| เมื่อได้รับชำระค่าบริการงวดที่ 3 ครบถ้วนแล้ว ทางเราจะจัดส่งเอกสารให้ท่านตามที่อยู่ที่แจ้งไว้ | 1-3 | ||
**ระยะเวลาเตรียมเอกสาร (ซื้อแบบพร้อมสร้าง) ไม่เกิน 7-10วัน ทำการ ยื่นขอก่อสร้างได้ทันที / กรณีออกแบบใหม่ ใช้เวลา 60 วัน
ลูกค้าสร้างบ้านกับทางเรา ค่าก่อสร้าง เริ่ม 5.7 - 6.7 ล้านบาท ฟรี!! ค่าแบบบ้าน
ลูกค้าสามารถซื้อของบางหมวดเองได้ เพื่อลดต้นทุน ค่าก่อสร้าง อาทิ กระเบื้องพื้น-ผนัง สุขภัณฑ์ ประตู ปั๊มน้ำ โคมไฟ
- ค่าก่อสร้าง 5.7 -6.0 ล้าน Spec วัสดุ ดังนี้
- กระเบื้องแกรนิตโต้ 60x60 / อิฐมวลเบา /ประตู MDF/ ฉนวนกันร้อน SCG 3"/บันไดไม้จริง / ราวจับเหล็กทำสี Topไม้ / สุขภัณฑ์ cotto, American standard
- แถมฟรี!! ครัวหล่อTopหินแกรนิต ,ปั๊มน้ำ,ถังเก็บน้ำ ,ระบบกันปลวก
- ค่าก่อสร้าง 6.0 -6.7 ล้าน Spec วัสดุ ดังนี้
- กระเบื้องแกรนิตโต้ 60x60 ,SPC / อิฐมวลเบา-อิฐมอญ /ประตูไม้สัก อุปกรณ์ hafele / บันไดไม้สัก / ราวจับสแตนเลส Topไม้
- ฝ้าหลุมซ่อนไฟ LED / ฉนวนกันร้อน SCG 3"/ อ่างล้างหน้าแบบหล่อ Top หินแกรนิต / สุขภัณฑ์ cotto, American standard
- แถมฟรี!! ครัวหล่อTopหินแกรนิต, หล่อเบิ้ล ชั้นวางของห้องอาบน้ำ ,ปั๊มน้ำ, เครื่องทำน้ำอุ่น ,ถังเก็บน้ำ ,ระบบกันปลวก
